Мы используем куки-файлы. Соглашение об использовании
Площадь1 386,4 м²
Этажность3
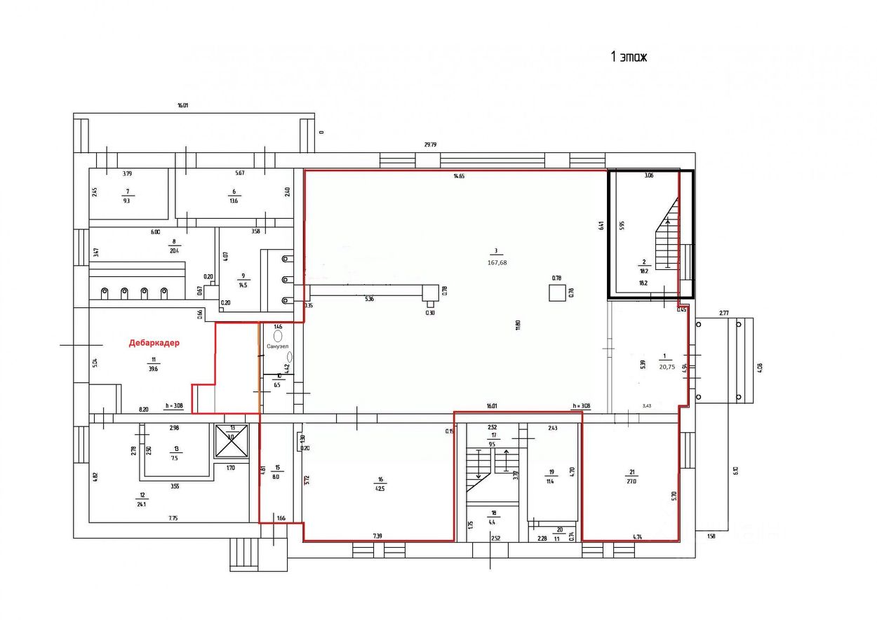
Предлагаем вашему вниманию уникальный объект коммерческой недвижимости отдельно стоящее здание. Это идеальное решение для тех, кто ищет прибыльное вложение в стабильный бизнес: объект реализуется с арендатором, что обеспечивает регулярный доход с первого дня. Первый и второй этажи здания сданы в аренду! Идеально подойдёт для медицинского центра или для ночного клуба. Данное здание граничит с ТЦ "Макси" и с "Планета-авто", а также с несколькими автосалонами, что обеспечивает высокий трафик покупателей. Земля в собственности. Готовы рассмотреть продажу по этажам. 1-й этаж: 17.500.000 руб.; 2-этаж: 37.080.000 руб.; 3-й этаж: 32.960.000 руб. Общая площадь здания составляет 1386,4 м², что позволяет эффективно организовать торговую площадь или другое предприятие. Здание находится в отличном состоянии и имеет открытую планировку, что обеспечивает гибкость в использовании пространства. Несколько отдельных входов увеличивают проходимость, а наличие грузового лифта значительно упрощает логистику и доставку товаров. Кроме того, здание оснащено всеми необходимыми коммуникациями: электричеством, водоснабжением, отоплением и канализацией. На территории присутствует наземная парковка, что является неоспоримым плюсом для ваших клиентов. За безопасностью объекта отвечает профессиональная охрана. Это свободно назначаемое нежилое здание отличная возможность для инвесторов, желающих расширить свой бизнес или найти надежный источник пассивного дохода. Не упустите шанс стать владельцем успешного коммерческого объекта в одном из перспективных районов Кирова. Звоните прямо сейчас, чтобы договориться о просмотре! НАШИ ГАРАНТИИ И ПРЕИМУЩЕСТВА: эксклюзивное право продажи полное юридическое сопровождение сделки, помощь в получении ипотечного кредита работа с материнским капиталом и сертификатами сотрудничество со всеми банками нашего города. __________________________________ Агентство недвижимости "Дело и Деньги" С нами надежно! Нам доверяют, нас рекомендуют!
lock

Войдите или зарегистрируйтесь
для просмотра информации

Просматривайте условия сделки и всю информацию об объекте
Сохраняйте фильтры в поиске и не вводите заново
Доступ к избранному с любого устройства
Неограниченное добавление в избранное
Позвоните автору
Вам ответят на все вопросы
Остались вопросы по объявлению?
Позвоните владельцу объявления и уточните необходимую информацию.
  • Инфраструктура
  • Похожие рядом
Помощь надёжных риелторов
Риелтор партнёр Циан поможет купить или продать любую недвижимость
87 500 000 ₽
1 169 765 $
987 107
Цена за метр
63 114 ₽
Налог
НДС включен: 15 778 688 ₽
Агентство недвижимости
Документы проверены
На Циан
6 лет
Объектов в работе
442