Мы используем куки-файлы. Соглашение об использовании
Помещение свободного назначения, 205 м²

Продается помещение свободного назначения, 205 м²

Площадь205 м²
Этаж1 из 5
ПомещениеСвободно
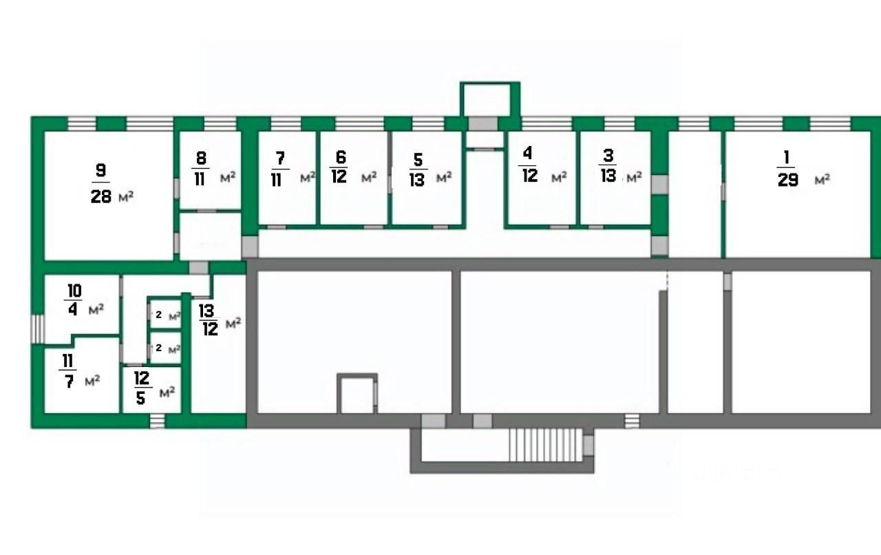
Представляем вашему вниманию уникальный объект коммерческой недвижимости с арендаторами, расположенный по адресу: Кировская область, г. Киров, ул. А.С. Большева, 4. Это встроенное помещение площадью 205 м². Помещение располагается на первом этаже жилого здания с отдельным входом со двора, что обеспечивает удобный доступ для клиентов и сотрудников. Вокруг множество жилых помещений, что повышает количество Ваших клиентов. Помещение кабинетной планировки, включает в себя 8 кабинетов, что позволяет эффективно организовать рабочие процессы и создать комфортные условия для сотрудников. Высота потолков 2,5 метра создает ощущение простора и свободы, что положительно сказывается на рабочей атмосфере. Вы получите готовую экосистему, которая подключена ко всем коммуникациям. Мы сделали так, что не придется разбираться со связью, ходить по инстанциям и разбираться с арендаторами. Ведь помещение с арендаторами-не просто кусок бетона, а готовая деньгопечатающая машинка! В помещении стабильные арендаторы, объект заселен на 100% В наличии все необходимые коммуникации: электричество, водоснабжение, отопление и канализация. Отличный вариант для инвестиции, окупаемость 120 месяцев Не упустите шанс инвестировать в свою мечту! Помещение находится в собственности Агентство недвижимости "Дело и Деньги". С нами надежно! Нам доверяют, нас рекомендуют!
lock

Войдите или зарегистрируйтесь
для просмотра информации

Просматривайте условия сделки и всю информацию об объекте
Сохраняйте фильтры в поиске и не вводите заново
Доступ к избранному с любого устройства
Неограниченное добавление в избранное
Позвоните автору
Вам ответят на все вопросы
Остались вопросы по объявлению?
Позвоните владельцу объявления и уточните необходимую информацию.
  • Инфраструктура
  • Похожие рядом
  • Тип зданияЖилой дом
  • Общая площадь205 м²
Помощь надёжных риелторов
Риелтор партнёр Циан поможет купить или продать любую недвижимость
8 800 000 ₽
115 412 $
98 725
Цена за метр
42 927 ₽
Налог
УСН
Агентство недвижимости
Документы проверены
На Циан
5 лет
Объектов в работе
444