Мы используем куки-файлы. Соглашение об использовании
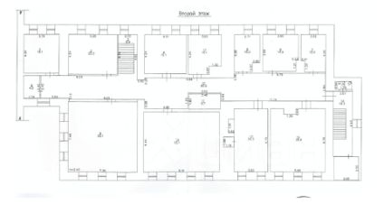
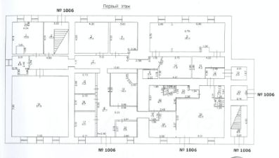
Помещение свободного назначения, 745,7 м²

Продается помещение свободного назначения, 745,7 м²

Отдельно стоящее здание.3 входа.

Площадь745,7 м²
Этаж1 из 2
ПомещениеСвободно
Описание Продаётся отдельно стоящее двухэтажное здание общей площадью 745,7 м² Первая линия оживленного перекрёстка в самом центре города Уржум, Кировской области. Население города: 10000 человек. ЛОКАЦИЯ — СИЛЬНЫЙ ТРАФИК Объект расположен в точке с высоким пешеходным и автомобильным потоком: ЗАГС Суд Социальные службы Магазины и коммерция Центральная улица города Уржум,Кировская область. Постоянный поток людей Подходит под федеральных арендаторов В городе активно представлены сетевые компании — есть устойчивый спрос на коммерческие помещения ХАРАКТЕРИСТИКИ Общая площадь: 745,7 м² Площадь 1 этажа 350 м² Этажность: 2 этажа Отдельно стоящее здание Выполнен основной ремонт — можно сразу использовать. КОММУНИКАЦИИ Центральное отопление Электрическая мощность: ~30 кВт Есть возможность увеличения Подходит под широкий спектр арендаторов ВХОДНЫЕ ГРУППЫ 1 этаж — 3 отдельных входа Отдельный вход на 2 этаж с фасада Дополнительный вход со двора Удобно делить на нескольких арендаторов ВАРИАНТЫ ИСПОЛЬЗОВАНИЯ Готовый арендный бизнес Сдача одному арендатору или разделение на 2 и более арендаторов (1 этаж / 2 этаж) Офисный центр Медицинский центр / услуги / образование Торговое направление Сейчас часть помещений сдается (краткосрочные договоры) Возможна полная очистка объекта под нового собственника ПАРКОВКА Бесплатная парковка во дворе — на 12 машин Дополнительно парковка вдоль здания ДОПОЛНИТЕЛЬНО Планировки и варианты деления направлю по запросу СДЕЛКА Цена - сказка. Подходит для инвесторов из Кирова, Казани. Возможен быстрый выход на сделку
lock

Войдите или зарегистрируйтесь
для просмотра информации

Просматривайте условия сделки и всю информацию об объекте
Сохраняйте фильтры в поиске и не вводите заново
Доступ к избранному с любого устройства
Неограниченное добавление в избранное
Позвоните автору
Вам ответят на все вопросы
Остались вопросы по объявлению?
Позвоните владельцу объявления и уточните необходимую информацию.
  • Инфраструктура
  • Похожие рядом
  • Тип зданияТоргово-деловой комплекс
  • Общая площадь745,7 м²
Естественная вентиляция
Местное кондиционирование
Центральное отопление
Сигнализация
Помощь надёжных риелторов
Риелтор партнёр Циан поможет купить или продать любую недвижимость
Автор объявления
ID 21141866
  • Документы проверены
  • 7 лет 4 месяца на Циане
  • 3 499 990 ₽
    46 520 $
    39 603
    Цена за метр
    4 694 ₽
    Налог
    УСН
    Автор объявления
    ID 21141866
    Документы проверены