Мы используем куки-файлы. Соглашение об использовании
Обновлено: сегодня, 10:57
В объявлениях автора могут быть неактуальные объекты
 

Продается 3-комн. квартира, 86,7 м²

Общая площадь86,7 м²
Жилая площадь51,8 м²
Площадь кухни14,4 м²
Этаж9 из 10
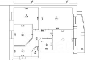
Продается полностью готовая к проживанию евро -4 комнатная квартира три отдельные спальнидля дружной семьи в 100% кирпичном доме 2012 г.п. Квартира расположена на 9 этаже, над нами тех- этаж, отсутствие топающих соседей сверху и шикарный вид на закатную часть города. Уютный , тихий центр -район Джем Молла. Просторная парковка вокруг дома. Застройщик -Маяковская. Стильный, свежий ремонт- делали для себя. Планировка квартиры включает в себя три раздельные просторные комнаты: -гостиная 24,2 кв м -спальня 15,3 кв.м -детская 12,3 кв.м -кухня-гостиная 14,4 кв.м -раздельный су 4.1 кв.м и 1,8 кв.м -просторный коридор 17 кв.м В квартире для комфортного проживания, остается вся мебель и техника. Квартира юридически чистая, 1 собственник, вся сумма в договоре, быстрый выход на сделку. Просмотр по договоренности, звоните. Арт. 134233106
Позвоните автору
Вам ответят на все вопросы

О квартире

Тип жилья

Вторичка

Общая площадь

86,7 м²

Жилая площадь

51,8 м²

Площадь кухни

14,4 м²

Санузел

1 раздельный

Балкон/лоджия

1 лоджия

Вид из окон

Во двор

Ремонт

Евроремонт

О доме

Год постройки

2011

Строительная серия

Индивидуальный проект

Количество лифтов

1 пассажирский, 1 грузовой

Тип дома

Кирпичный

Тип перекрытий

Железобетонные

Подъезды

8

Отопление

Центральное

Аварийность

Нет

Газоснабжение

Центральное

Спросите умного помощника
Получите экспертное мнение о жилье

Расположение

Ипотечный калькулятор
  • Базовая
  • Семейная
  • ИТ-ипотека
  • 20%
  • 30%
  • 40%
  • 50%
лет
  • 10 лет
  • 20 лет
  • 30 лет
Загружаем предложения от застройщика и банков
Помощь риелтора
Проверенный риелтор поможет купить или продать квартиру
Агентство недвижимости
Документы проверены
13 950 000 ₽
Цена за метр
160 900 ₽/м²
Условия сделки
свободная продажа
Ипотека
возможна
Агентство недвижимости
Документы проверены
На Циан
5 лет
Объектов в работе
230