51 935 ₽/м²
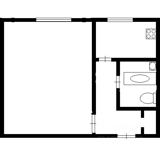
Выставляем на продажу однокомнатную квартиру г. Кирово-Чепецк. Расположена на 7 этаже 9 этажного кирпичного дома, год постройки 1986 г.п. ( новая планировка). Местоположение вдали от загруженных улиц: отсутствие шума и пыли. ПЛАНИРОВКА КВАРТИРЫ ПРЕДУСМАТРИВАЕТ => Кухню площадью 7,5 кв.м. Гостиная площадью 14 кв.м Сан. узел совмещён Металлическая входная дверь. Квартира продаётся в жилом состоянии без наценки на ремонт. Соответственно вы самостоятельно можете выбрать для себя дизайн-проект. Планировка отличная: комната правильной прямоугольной формы, просторная кухня с выходом на застеклённый балкон, где можно наслаждаться свежим воздухом и тишиной. Металлическая входная дверь гарантирует надежность и безопасность, а газовая плита добавляет удобства в быту. Чистый подъезд, спокойные соседи, двор благоустроен, есть детская площадка. ИНФРАСТРУКТУРА: Детские сады: 17, 18 Школа-лицей, 6 Сетевые магазины, аптеки, поликлиника. Прекрасная транспортная развязка в любую точку города. ЮРИДИЧЕСКАЯ ЧАСТЬ: Один взрослый собственник. Обременения и задолженности отсутствуют. НАШИ ГАРАНТИИ: Эксклюзивное право продажи Полное юридическое сопровождение сделки, помощь в получении ипотечного кредита, сотрудничество со всеми банками нашего города. Работа с материнским капиталом и сертификатами. ____________ Агентство недвижимости "Дело и Деньги". С нами надежно! Нам доверяют, нас рекомендуют!










































































