101 375 ₽/м²
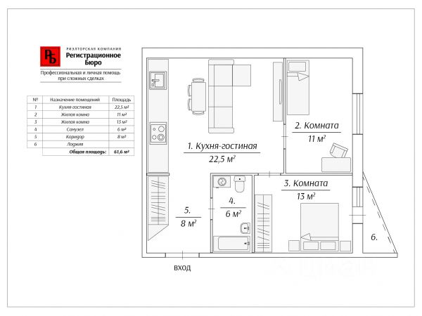
Квартира расположена на 4 этаже 5-этажного дома, общей площадью 58,2 м² + площадь балкона 3 м². Состояние квартиры отличное, сделан качественный ремонт: на полу ламинат, кафель в санузле и на кухне, натяжные потолки, пластиковые окна, качественные межкомнатные двери. Предусмотрены вместительные системы для хранения вещей. Квартира светлая и теплая, можно заехать и жить. Дом 1959 г.п., кирпичный. Парковка для автомобилей во дворе, въезд через шлагбаум, вход в подъезд через домофон. В шаговой доступности вся инфраструктура для комфортного проживания: школа, детские сады, продуктовые магазины, ТЦ, остановки общественного транспорта. Документы готовы к продаже, один взрослый собственник, без долгов и обременений.
















































































