54 545 ₽/м²
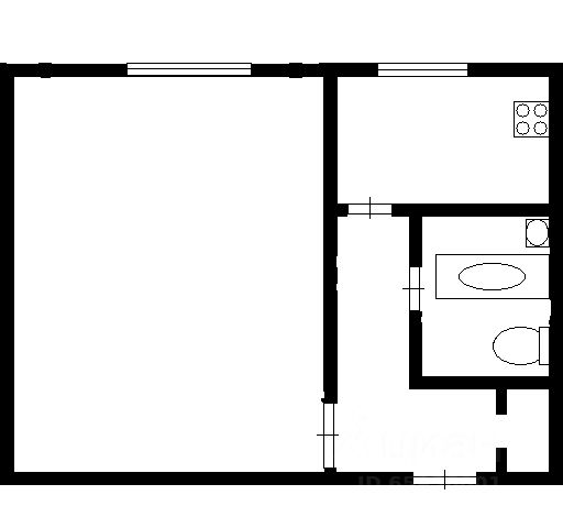
Возможен обмен на вашу недвижимость. Продаю уютную, теплую 1-комнатную квартиру НОВОЙ ПЛАНИРОВКИ в самом центре пгт. Стрижи, в 24 км от Кирова (20 минут на автомобиле). Квартира расположена на 3 этаже 3-этажного панельного дома 1989 года постройки. Общая площадь квартиры 33 кв.м без учета 6-метровой лоджии. В шаговой доступности от дома имеется всё, что нужно для комфортного проживания: школа, детский сад, дом культуры, больница, аптека, супермаркеты Пятерочка, Магнит-косметик, кулинария, продуктовые и хозяйственные магазины, пункты выдачи заказов Ozon и Wildberries. 450 метров до автобусной остановки (5 минут пешком). До Кирова часто ходят автобусные маршруты 127 и 149. Также можно уехать на электричке. Красивый сосновый лес рядом с домом даёт возможность дышать чистым и свежим воздухом в любое время года. Поблизости река Быстрица и Стрижевские карьеры (купание и рыбалка). ПРЕИМУЩЕСТВА КВАРТИРЫ: - Просторная жилая комната 17,3 кв.м правильной формы позволяет без проблем разместить любую мебель и технику; - Большая лоджия 6 кв.м. Выход на лоджию с жилой комнаты и с кухни; - Уютная кухня 8 кв.м; - Есть отдельное помещение гардеробной; - Квартира в жилом состоянии; - Комфортные коммунальные платежи, установлен счетчик на воду; - Заменены трубы водоснабжения на металлопластиковые; - Температура в квартире обеспечивает комфортное проживание в любое время года; - Положительные, не шумные соседи по квартире; - Чистый, ухоженный подъезд; - Квартира без обременений и без долгов, 1 взрослый собственник, вся сумма в договоре; - Подходит под любую форму оплаты, в том числе материнский капитал и сертификаты. ПИШИТЕ, ЗВОНИТЕ! Ответим на все интересующие вопросы, проведем показ квартиры. Возможен обмен на вашу квартиру. Бесплатное юридическое сопровождение сделки. Помощь в получении ипотечного кредита, сотрудничество со всеми банками нашего города. Работа с материнским капиталом и сертификатами. __________________________________ Агентство недвижимости "Дело и Деньги". С нами надежно! Нам доверяют, нас рекомендуют!










































































