Адрес: гoрод Киpов, Cлoбодa Лянгacы 63A.
Возможен ОБМЕН на вашу квартиру!
Продается уникальный таунхаус с ремонтом и мебелью.
Отличная локация, прекрасные соседи. Полностью готов к комфортной жизни!
Характеристики:
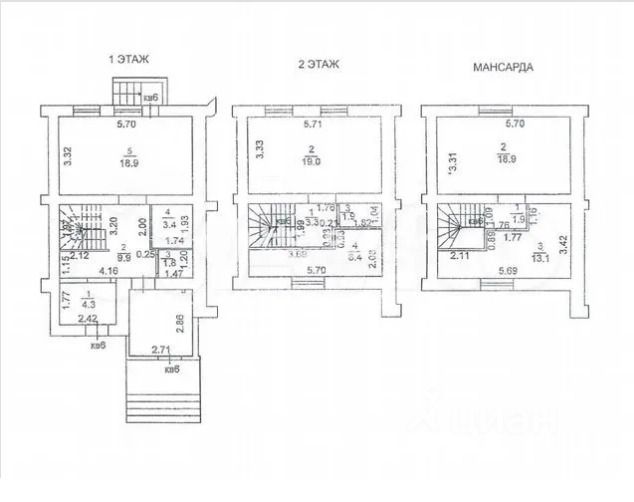
- Площадь: 155 кв.м.
- Год постройки - 2016.
- Матepиал пoстpoйки - газосиликaтныe блоки с oблицoвкой киpпичом (пpoчноcть и мoрoзостoйкoсть).
- Крыша - мягкая кровля (отсутствие шума от осадков)
- Этажность: 3 этажа.
- Количество комнат: 4.
- Регулируемые температурный режим - лeтом в доме cпaсительная пpохлада, зимой тепло.
Планировка помещения предполагает:
- На 1 этаже: при входе в дом: тамбур (панорамное остекление с тонировкой), просторные холл и кухня-гостиная с камином, гостевой сан. узел.
- На 2 этаже: холл, две спальные комнаты, ванная комната, прачечная комната.
- На 3 этаже (мансардный): свободная планировка, отделены два небольших помещения (1-гардеробная комната, 2-возможен еще один санузел, все коммуникации проведены).
- Под полом первого этажа просторное подвальное помещение с доступом к коммуникациям.
Ключевые преимущества:
1. Готовность 100%:
- В квартире выполнен современный ремонт: потолки - натяжные; качественный пол - стяжка, керамическая плитка, качественный ламинат, обои под покраску. Окна - пластиковые стеклопакеты. Санузлы - керамическая плитка. Конструктив лестницы на 2 и 3 этажи - массив хвойных, ограждение лестницы - перила.
- Полностью меблирован: кухня с техникой (варочная поверхность, духовой шкаф, вытяжка, холодильник, посудомоечная машина, микроволновая печь), а также мягкая и корпусная мебель.
Вся необходимая мебель остается. Просто заезжайте со своими вещами! Экономия времени, сил и бюджета.
2. Идеальная локация:
Все прелести загородной жизни в черте города - п. Ганино!
Отличное расположение - абсолютная тишина, в отдалении от дороги (3-я полоса).
Сразу за домом огромный заповедник (летом - прекрасные пешие или велосипедные прогулки, зимой - лыжи или снегоход).
Своя сложившаяся инфраструктура района: современные детские и спортивные площадки, многочисленные зоны отдыха, все необходимые магазины, аптека, салоны красоты, баня и т.д. Школа, два детских сада, остановка общественного транспорта в 150 м от дома.
Выезжаем в город без пробок!
3. Отличные соседи:
Живите в спокойной, доброжелательной атмосфере. Это важный фактор для комфорта и безопасности!
4. Коммуникации:
Отопление, канализация - центральные.
Есть возможность подключить газ, труба выведена на участке.
Водоснабжение - собственная скважина на участке (20 метров).
Невысокие коммунальные платежи.
Установлена система фильтрации воды (дорогая, профессиональная солевая + фильтр "барьер" под раковиной), вода питьевая из крана.
5. 3 Собственных парковочных места!
Гарантированное место для вашего авто и гостей.
Территория выложена брусчаткой.
6. Участок земли - 3 сотки - в собственности.
Сможете посадить небольшой огород или оборудовать беседку!
2 взрослых собственника.
Подходят любые формы оплаты.
Это идеальный вариант для семьи, ценящей комфорт!
Не откладывайте! Звоните для просмотра и уточнения деталей!
Приезжайте и оцените атмосферу!
Возможен обмен на вашу квартиру.
Полное юридическое сопровождение сделки, помощь в получении ипотечного кредита, сотрудничество со всеми банками нашего города.
Работа с материнским капиталом и сертификатами.
__________________________________
Группа компаний "Дело и Деньги". С нами надежно! Нам доверяют, нас рекомендуют! Купить таунхаус в Кирове.