189 162 ₽/м²
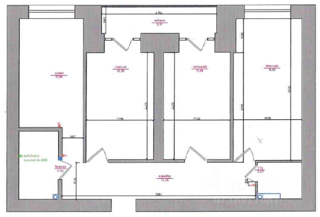
Ипотека Возможен обмен на вашу квартиру Эта квартира для тех кто ценит комфорт и эстетику. В продаже видовая квартира формата евро 3 на 12 этаже из 12. Жилой дом ПРЕМИУМ-КЛАССА построен в 2016-м году застройщиком "АТЭКС" (в 2017 г. вошел в ГК Железно) и РАСПОЛОЖЕН в центральной части города, которая включает в себя развитую социально-культурную инфраструктуру: - Детские сады 188, 129, 147, 120. - Среднюю общеобразовательную школу 57, 51. - Продуктовые магазины "Пятёрочка", "Магнит", "Глобус", "Дороничи". - ТЦ "Дом обуви", ТЦ "Jam Молл". - Парк им.С.М.Кирова, Цирк, парк 50-летия ВЛКСМ. - Бассейн "Спартак", "Море парк". - В шаговой доступности находится множество аптек, салонов красоты и многое другое. - До остановки общественного транспорта: 4 минуты (380 метров). При строительстве дома использовалась современная технология "монолит-кирпич", которая обеспечивает высокую устойчивость к неблагоприятным факторам окружающей среды и повышает показатели его тепло - и звуконепроницаемости. ПРИДОМОВАЯ ТЕРРИТОРИЯ. Облагороженная. Закрытая. Въезд через автоматические железные ворота. Достаточное количество парковочных мест для вашего авто на оборудованной парковке рядом с домом. Также имеется тёплый подземный паркинг. За дополнительную плату можно купить 2 парковочных места в подземном паркинге (1 место 1,7 млн.р). Чистый подъезд. Отсутствие проблем с обеспечением коммунальными услугами. Установлены 2 скоростных лифта фирмы Wellmaks - грузовой и пассажирский. Детские и спортивная площадка во дворе. Видеонаблюдение. ПЛАНИРОВКА КВАРТИРЫ ПРЕДУСМАТРИВАЕТ Просторную кухню-гостиную площадью 44 м2. Изолированную спальную комнату площадью 18 м2 с выходом на шикарную лоджию с потрясающим видом на город площадью 13 м2 и вместительным шкафом-купе. Изолированную комнату (можно использовать как детскую или гостевую) площадью 12 м2. Совмещенный санузел площадью 9 м2 с ванной и оснащенной душевой. Хозяйственно- подсобной комнаты площадью 1,8 м2. Эргономичную входную группу площадью 5 м2. Установлен вместительный шкаф-купе. В квартире сделан классический современный ремонт по дизайн-проекту с использованием качественных импортных отделочных материалов: Вся мебель в квартире сделана под заказ в одном стиле с использованием натурального дерева. Установлены пластиковые стеклопакеты, подоконники из натурального камня. Столешница и фартук у кухонного гарнитура из натурального камня. Ванная комната оснащена: душевой с тропическим душем, ванной. При отделке стен использовался натуральный оникс с подсветкой. Установлены приборы учёта. Новые трубы и европейская сантехника. Установлен подвесной унитаз с гигиеническим душем. Прачечной со стиральной и сушильной машиной фирмы Siemens, водонагревателем и фильтрами для воды. Панорамная лоджия застеклена пластиковым стеклопакетом. Утеплена и может использоваться как место для отдыха. Двухуровневый потолок: центральное освещение - люстры, дополнительн










































































