Мы используем куки-файлы. Соглашение об использовании
Обновлено: вчера, 18:55
Только на Циан

Продается 3-этажный таунхаус, 105 м²

Дом (105 м.кв)

Общая площадь105 м²
Участок1 сот.
Материал домаГазобетонный блок
Этажей в доме3
Год постройки2016
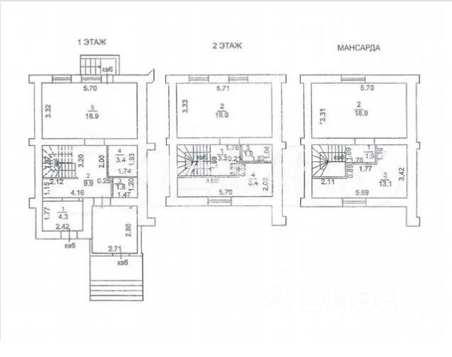
Арт. 93533061. ** В продаже таунхаус в ЖК "Васильки", по адресу: город Киров, мкр Радужный, улица Севастопольская. Год постройки - 2016, в доме всего 8 квартир. ** Особенности планировки: общая площадь: 105 кв.м., жилая: 60 кв.м. Планировка квартиры предполагает: На 1 этаже: при входе в дом: теплый тамбур: 5 кв.м., просторный холл: 15 кв.м., кухня-гостиная: 19 кв.м. с отдельным выходом из квартиры в общий, закрытый двор на 5 таунхаусов, огороженный красивым металлическим заборчиком, кладовая - 2 кв.м., санузел (совмещен). На 2 этаже: большая спальня - 19 кв.м., холл, санузел, сауна, кладовая - 5 кв.м. На 3 этаже: две просторные комнаты - 19 кв.м. и 13 кв.м., холл. Есть гараж (3*5) и собственное парковочное машиноместо у крыльца дома. ** Особенности ремонта: потолки - натяжные; качественный пол - стяжка, керамическая плитка и пробковое покрытие. Окна - пластиковые стеклопакеты. Санузлы - керамическая плитка. Кухня оборудована гарнитуром. Конструктив лестницы на 2 и 3 этажи - металлическая конструкция + дерево, ограждение лестницы - металлические перила. ** Особенности проживания: водоснабжение, канализация - центральные. Отопление - двухконтурный газовый котел, что дает полную независимость от отключений горячей воды, а также графика включения отопления (можно использовать круглый год). Кроме того, это существенно снижает коммунальные платежи. Общие насаждения, двор без машин, закрытая территория. ** Преимущества микрорайона - абсолютная тишина, в отдалении от дороги. ЖК "Васильки" - уютный, жилой комплекс со своей сложившейся инфраструктурой, расположенный в непосредственной близости от мкр Радужный. Разнообразные современные детские и спортивные площадки, многочисленные зоны отдыха, тропа здоровья для прогулок летом и зимой. Всего в 5 минутах езды находится Дендрологический парк и Нововятский район города Кирова. В пешей доступности детские сады, школа 74 с углубленным изучением отдельных предметов и бассейном. ** Примем в оплату ваше жильё. Обеспечим своим клиентам скидки к ставке по ипотеке. Официальный партнёр всех банков. Возможно использовать любые сертификаты и материнский капитал. Собственники совершеннолетние, долгов нет.
Позвоните автору
Вам ответят на все вопросы

О доме

Площадь

105 м²

Материал дома

Газобетонный блок

Количество этажей

3

Год постройки

2016

Об участке

Площадь

1 сот.

Статус участка

Индивидуальное жилищное строительство

Коммуникации и удобства

Канализация

Центральная

Водоснабжение

Центральное

Электричество

Есть

Дополнительно

Гараж

Спросите умного помощника
Получите экспертное мнение о жилье

Расположение

Подпишитесь на объявления в этой локации
Мы сообщим, как только поблизости появится что‑нибудь новенькое
Ипотечный калькулятор
  • Базовая
  • Семейная
  • ИТ-ипотека
  • 20%
  • 30%
  • 40%
  • 50%
лет
  • 10 лет
  • 20 лет
  • 30 лет
Загружаем предложения от застройщика и банков
Агентство недвижимости
Документы проверены
Хотите продать недвижимость?Разместите объявление на ЦианРазместить
13 200 000 ₽
Цена за метр
125 714 ₽/м²
Ипотека
возможна
Агентство недвижимости
Документы проверены
На Циан
7 лет
Объектов в работе
62